Typ Meerblick
Wohn-Nutzfläche:
ca. 132 m2
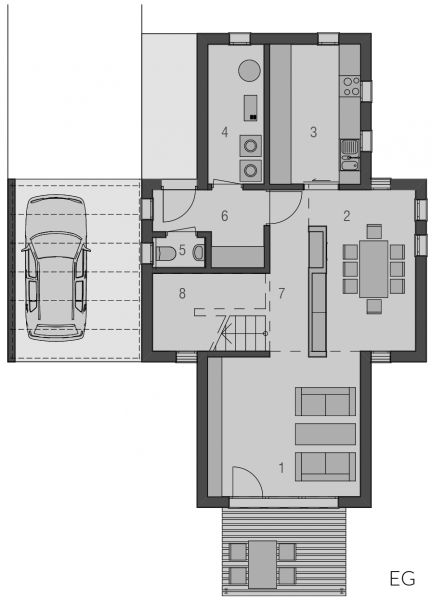
Der außergewöhnliche Fußabdruck des Haustyps "Meerblick" bestimmen sein individuelles Erscheinungsbild und seinen besonders reizvollen Grundriss. Die Raum- und Blickbezüge sind innen wie außen differenziert und spannungsvoll. Dies wird unter anderem durch die fein durchdachte Erschließung erzielt, die im Verhältnis zu den Wohnflächen nur wenig Raum beansprucht. So profitiert das Erdgeschoss neben einem intimen Eingangsbereich von viel Platz für Küche, Ess- und Wohnzimmer. Das geschickt eingestellte Treppenhaus erschließt Elternschlafzimmer, zwei Kinderzimmer und Bad im Obergeschoss.
Abbildungen enthalten Sonderausstattungen.
